Architetto Carmelo Stelitano
ARCHITETTURA & INTERIOR DESIGN
Restyling appartamento unifamiliare
Intra (VB), Italia
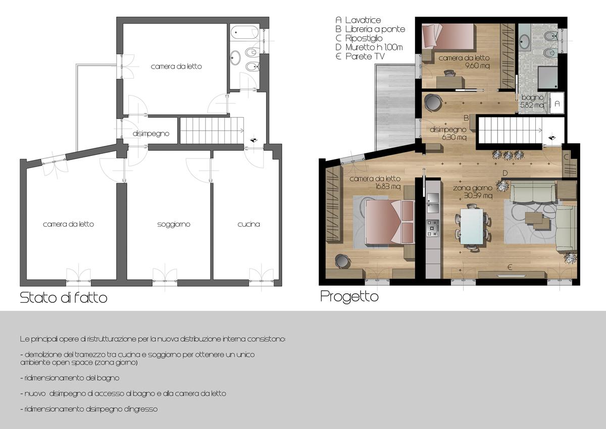
L'appartamento costituito da una cucina, un soggiorno, due camere da letto, un piccolo terrazzino e un angusto bagno, presentava una distribuzione interna non congeniale alle attuali esigenze moderne; le finiture interne risultano antiquate e rendono l'aspetto dell'appartamento trasandato e disordinato.

Le opere principali di ristrutturazione interna comprendono:
- la demolizione del tramezzo tra cucina e soggiorno per ottenere un unico ambiente open space per sfruttare al meglio la luce naturale;
- la realizzazione di un unico ingresso all'interno dell'open space, diviso un piccolo muretto di altezza 100cm;
- il ridimensionamento del bagno, con nuove finiture e nuovi sanitari;
- un nuovo disimpegno tra la camera da letto, il bagno e l'accesso al terrazzino.
In questo spazio che solitamente è solo di passaggio, è stata inserita una libreria a ponte per utilizzarlo come spazio di relax in adiagenza la terrazzino.
Informazioni
Tipologia: Edificio residenziale
Luogo: Intra (VB), Italia
Anno: 2015
Committente: Agenzia Immobiliare
Fase: Progetto preliminare
Team: CS19 - LineArch
© copyright - CS19 | Architetto Carmelo Stelitano
Via Nazionale Dresio, n°7 primo piano - Vogogna (VB) - Tel. 0324 878827 - Cell. +39 347 0368897
Web Design & Web Developer by
LineArch